800-264-5013

Design in 3D

Facebook Youtube Twitter
REQUEST A QUOTE

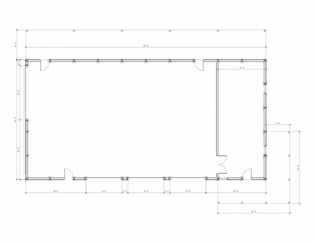
Project #171101

Project Details:

Location: Evansville, IN

Dimensions: 40' x 80' x 14' w/ 10' x 80' x 11' Lean-to and 8' x 32' x 8' Wrap Around Porch

Roof: Charcoal

Side: Clay

Trim: Charcoal

Wainscot: Charcoal

< Project #20326 Project #17504 >