800-264-5013
Design in 3D
Home
Fiver Rivers Difference
Buildings
Commercial
Gallery
About Us
REQUEST A QUOTE
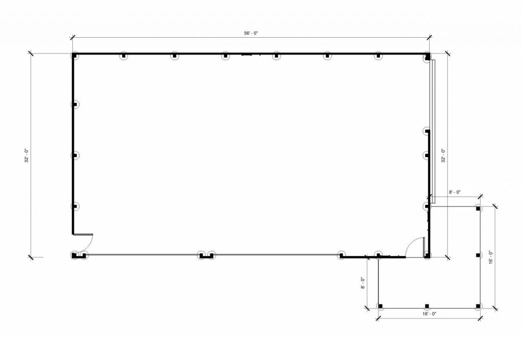
Project #17504
Project Details:
Location:
Evansville, IN
Dimensions:
32' x 56' x 14' w/ 8' x 16' x 8' Wrap Around Porch
Roof: Burnished Slate
Side: Clay
Trim: Burnished Slate
Wainscot: Burnished Slate
X
❮
❯
< Project #171101
Project #16526 >